丁香花电影高清在线小说阅读-丁香花影院免费观看电视剧哈尔-丁香花影院在线观看免费播放电视剧-丁香花在线高清视频完整版观看

您當前位置:產品中心 >> 進口球閥 >> 進口燃氣放散球閥
進口燃氣放散球閥
產品概述
進口燃氣放散球閥是管道輸送可燃易爆氣體的一種安全預警裝置,當某種暫時原因使控制點的壓力超過設定值(氣泡爆裂壓力)時,即排放一定量的氣體。閥門無論處于開或關位,上下游壓力均可通過放散閥排放內部壓力,保護設備不受壓力急劇升高而造成的損壞
產品詳情

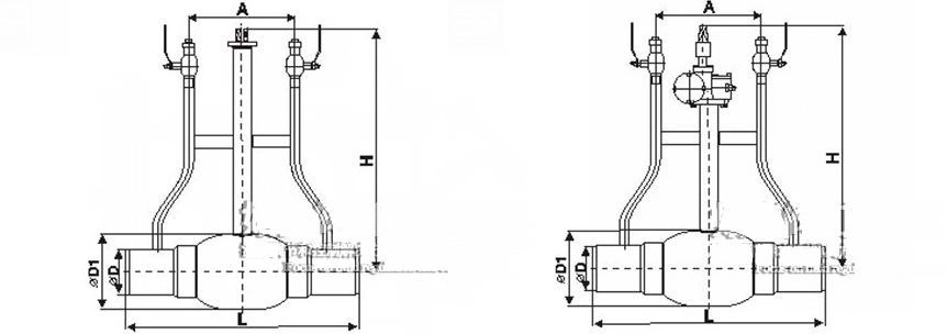
進口燃氣放散球閥的整體結構采用全焊接的工業結構,使閥門的內、外密封得到了極大的提高,閥門的重量得到了很大的降低(特別是DN300以下口徑)使閥門的安裝變得更為便捷,不僅降低了工程施工的成本,也節省了時間。全焊接球閥廣泛應用于城市燃氣的地下管線,天然氣輸送管線,調壓站等領域?芍苯由盥竦叵。不用設置地下閥門控制室,這樣操作者不需要進入地下,只需在地上用T型手柄進行傳動操作即可,非常方便。

 

進口燃氣放散球閥的特點

 

1、閥體采用無縫鋼管壓制成型。

2、閥門的整體結構采用全焊接制造工藝,減少了外泄漏;閥門重量大大減輕,安裝更便捷。

3、采用彈性墊圈及碳纖維增強密封圈,可經手幾萬次往復運動無泄漏,保證閥門的使用壽命。

4、閥門的密封可以在-40-200℃的條件下連續使用而不會失效。

5、連接方式有對焊、法蘭、螺紋連接等形式,開啟采用手柄、蝸輪傳動、電動等方式。

6、長桿直埋焊接球閥可以深埋地下,不用設置閥門井,操作者只需在地上用手柄或蝸輪傳動機構操作即可,非常方便。

 

 

進口燃氣放散球閥術參數 

 

公稱通徑

DN40-DN900  

公稱壓力

1.6MPa-4.0MPa

適用介質

燃氣

適用溫度

-20-120  

閥體材質

碳鋼、不銹鋼    操作形式:手柄

 

進口燃氣放散球閥尺寸表



                         

                   

DN

A

L

D1

d

D(DIN)

D(GB)

40

300

1000

88.9

38

48.3

45

50

300

1000

114.3

50

60.3

57

65

300

1000

139.7

65

76.1

73

80

300

1000

168.3

80

88.9

89

100

300

1000

177.8

100

114.3

108

125

400

1000

219.1

125

139.7

133

150

400

1000

273

150

168.3

159

 

溫馨提示:http://www.dongzezhuzao.com/show-561.html

本文中所有文字、數據、圖片均只適用于參考。需要查看更多的燃氣用直埋式放散球閥性能參數、結構尺寸參數、價格等詳情,請聯系我們。

 

上一個產品:進口全焊接球閥


020-32399500
qrCode